液壓式安全閥
產品型號:GYA
發布時間:2008-5-20
GYA液壓安全閥詳細說明:
GYA系列液壓式安全閥是(活瓣式)呼吸閥的安全備用設備,它的吸氣和呼氣的動作壓力略高于(活瓣式)呼吸閥,在呼吸閥一旦失靈或在冬季其活瓣凍結時,液壓安全閥的液封即被破壞從而保護油罐免遭破壞。液壓安全閥裝于油罐頂部與呼吸閥配合使用。
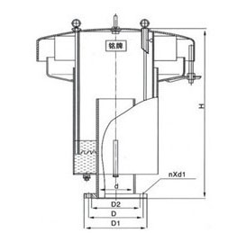
GYA液壓安全閥結構示意圖:


GYA液壓安全閥外形尺寸和連接尺寸:
| 型號 | 規格 | 安裝尺寸(毫米) | 重量 | ||||||
| d | D | D1 | D2 | n-d1 | L | H | |||
| GYA-80 | 80 | ø85 | ø185 | ø150 | ø125 | 4-ø18 | 376 | 424 | 38 |
| GYA-100 | 100 | ø105 | ø205 | ø170 | ø145 | 4-ø18 | 500 | 605 | 42 |
| GYA-150 | 150 | ø148 | ø260 | ø225 | ø200 | 8-ø18 | 650 | 705 | 66 |
| GYA-200 | 200 | ø210 | ø315 | ø280 | ø255 | 8-ø18 | 900 | 755 | 97 |
| GYA-250 | 250 | ø264 | ø370 | ø335 | ø310 | 12-ø18 | 1050 | 885 | 140 |
液壓安全閥控制的壓力或真空值比機械呼吸閥高10%,因此在正常情況下是不會動作的。閥內用沸點高(夏天不易揮發)、蒸發慢、凝點低(冬天不至于凝固)的油品(如輕柴油、太陽油或變壓器油)作為密封液體(簡稱封液)。本類閥門在管道中一般應當水平安裝。
液壓安全閥一種安全保護用閥,它的啟閉件受外力作用下處于常閉狀態,當設備或管道內的介質壓力升高,超過規定值時自動開啟,通過向系統外排放介質來防止管道或設備內介質壓力超過規定數值。安全閥屬于自動閥類,主要用于鍋爐、壓力容器和管道上,控制壓力不超過規定值,對人身安全和設備運行起重要保護作用。 按安全閥閥瓣開啟高度可分為微啟式安全閥和全啟式安全閥,微啟式安全閥的開啟行程高度為:≤0.05d0(*小排放喉部口徑);全啟式安全閥開啟高度為≤0.25d0(*小排放喉部口徑)。
安裝和維護注意事項
各種安全閥都應垂直安裝。
安全閥出口處應無阻力,避免產生受壓現象。
安全閥在安裝前應專門測試,并檢查其官密封性。
對使用中的安全閥應作定期檢查。
安裝符合要求
(l)額定蒸發量大于0.5t/h的鍋爐,至少裝設兩個安全閥:額定蒸發量小于或等于0.5t/h的鍋爐,至少裝一個安全閥。可分式省煤器出口處、蒸汽過熱器出口處都必須裝設安全閥。
(2)安全閥應垂直安裝在鍋商、集箱的*高位置。在安全閥和鍋筒或集箱之間,不得裝有取用蒸汽的出口管和閥門。
(3)杠桿式安全閥要有防止重錘自行移動的裝置和限制杠桿越軌的導架,彈簧式安全閥要有提升手把和防止隨便擰動調整螺釘的裝置。
(4)對于額定蒸汽壓力小于或等于3.82MPa的鍋爐,安全閥喉徑不應小于25mm:對于額定蒸汽壓力大于3.82MPa的鍋爐,安全閥喉徑不應小于20mm。
(5)安全閥與鍋爐的連接管,其截面積應不小于安全閥的進口截面積。如果幾個安全閥共同裝設在一根與鍋筒直接相連的短管上,短管的通路截面積應不步于所有安全閥排汽面積的1.25倍。
(6)安全閥一般應裝設排汽管,排汽管應直通安全地點,并有足夠的截面積,保證排汽暢通。安全閥排氣管底部應裝腔 作勢有接到安全地點的疏水管,在排氣管和疏水管上都不允許裝設閥門。